RRG 103 - Aldeia da Serra - Santana de Parnaíba

RRG 103 - Aldeia da Serra - Santana de Parnaíba

Perspectiva artistica RRG 103 - Residencial Morada das Flores, Aldeia da Serra - Santana de Parnaíba

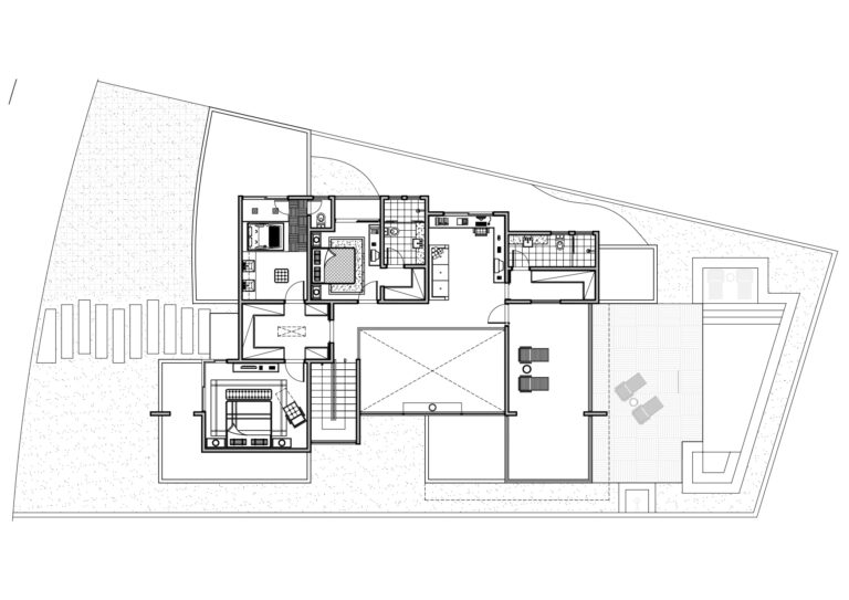
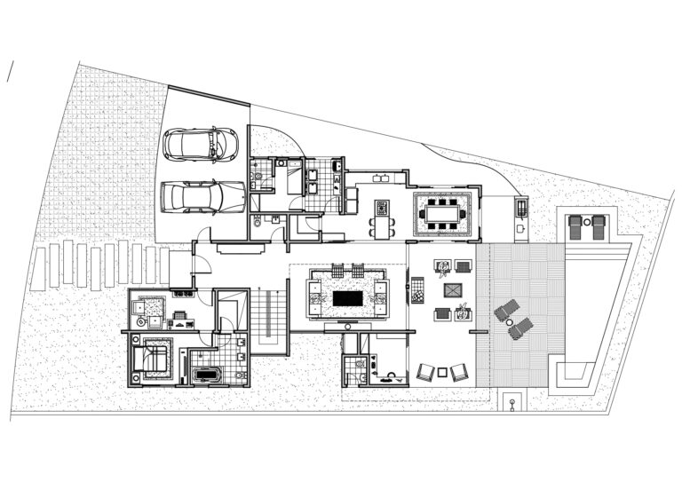
Plantas

Localização

Alameda dos Antúrios, nº 799 – Lote 25 – Quadra 13 – Residencial Morada das Flores – Aldeia da Serra – Santana de Parnaíba – SP